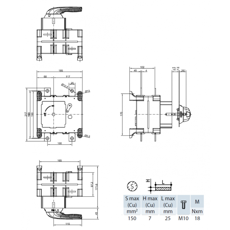
Описание S6N0250USS0 - Выключатель нагрузки S6, 2P Ith-250 A, Ue-1500 В DC, Telergon
Выключатели нагрузки постоянного тока Telergon S6 и S7 до 1500 В DC
Выключатели нагрузки Telergon серий S6 и S7 предназначены для надежной коммутации и безопасного отключения цепей постоянного тока (DC) в промышленных и энергетических системах. Устройства рассчитаны на работу с высокими токами нагрузки до 400 А и напряжением до 1500 В DC, что делает их оптимальным решением для солнечных электростанций, систем накопления энергии и промышленных DC-установок.
Все модели соответствуют требованиям международного стандарта IEC 60947-3, обеспечивая высокий уровень электрической и механической надежности.
Область применения
Выключатели нагрузки Telergon DC используются в:
-
фотоэлектрических установках (PV-системы до 1500 В DC);
-
системах накопления энергии (BESS);
-
промышленных установках постоянного тока;
-
распределительных щитах и шкафах DC-распределения.
Общие технические характеристики
-
Тип устройства: выключатель нагрузки постоянного тока (DC)
-
Производитель: Telergon
-
Серии: S6, S7
-
Номинальный ток (Ith): от 160 А до 400 А
-
Номинальное рабочее напряжение (Ue): 1000 В DC / 1500 В DC
-
Полюсность: 2P и 4P
-
Категория применения: DC-21B
-
Стандарт: IEC 60947-3
Конструктивные особенности
-
надежная коммутация цепей постоянного тока;
-
устойчивость к высоким токам нагрузки;
-
компактное исполнение для монтажа в шкафах;
-
варианты с фронтальным и боковым управлением;
-
высокая эксплуатационная надежность в тяжелых условиях.
Поддерживаемые модели
-
S7-02002PS0 — 2P, Ith 200 А, Ue 1500 В DC
-
S7-01602PS0 — 2P, Ith 160 А, Ue 1500 В DC
-
S6-04002LD0 — 2P, Ith 400 А, Ue 1500 В DC
-
S6-02502ES0 — 4P, Ith 250 А, Ue 1000 В DC
-
S6N0250USS0 — 2P, Ith 250 А, Ue 1500 В DC
Преимущества выключателей нагрузки Telergon DC
-
поддержка напряжения до 1500 В DC;
-
широкий диапазон токов для разных задач;
-
соответствие IEC 60947-3;
-
оптимальны для солнечных и промышленных DC-систем;
-
надежная защита и безопасное обслуживание оборудования.
Выключатели нагрузки Telergon S6 и S7 DC — профессиональное решение для эффективного управления и отключения цепей постоянного тока в современных энергетических и промышленных установках.
Основные характеристики S6N0250USS0 - Выключатель нагрузки S6, 2P Ith-250 A, Ue-1500 В DC, Telergon
Отзывы о S6N0250USS0 - Выключатель нагрузки S6, 2P Ith-250 A, Ue-1500 В DC, Telergon
Нет отзывов о данном товаре.
Вопросы и ответы (FAQ) S6N0250USS0 - Выключатель нагрузки S6, 2P Ith-250 A, Ue-1500 В DC, Telergon
